


W celu sprawdzenia dostępności oraz aktualnej ceny poniższego towaru prosimy o kontakt e-mailowy pod adresem: esklep@ecsystem.pl
Charakterystyka sterownika do zestawów hybrydowych - AFG 3000F - AFG
- Typy pracy sterownika:
- Praca progowo – czasowa
- Praca z przetwornicą częstotliwości ze stabilizacją ciśnienia w zadanym przedziale
- Praca progowo – czasowa POŻAR
- Praca ręczna
- Obsługa pompy sterowanej falownikiem (falownik przypisany do jednej pompy), w sterowniku zaimplementowany
- Regulator PID sterujący falownikiem
- Praca z maksymalnie 6 pompami wg trybu pracy (pompy sekcji bytowej lub pożarowej)
- Osobne wyjście pompy zalewowej oprogramowanie do wizualizacji i konfiguracji
Opis produktu
Sterownik hydroforowy AFG3000F firmy AFG jest urządzeniem mikroprocesorowym, służącym do sterowania pracą zestawu pompowego, hydroforowego.
Sterownik składa się z modułów:
- moduł regulatora AFG-3000F
- podstawowy moduł sterownika
- obudowa przystosowana do montażu na szynie DIN w szafie sterowniczej
- konsola operatorska AFG-3000F
- moduł klawiatury z wyświetlaczem LCD 2x16 i sygnalizacją LED
- obudowa przystosowana do montażu w dowolnym miejscu na drzwiach szafy lub w odległości do 200m od sterownika.
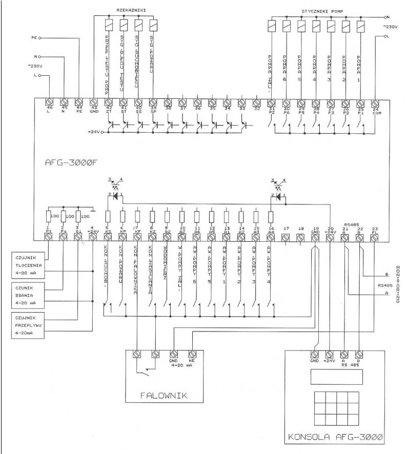
Schemat połączeń: